Mr et Mme W, Villons les Buissons – Aménagement d’un espace parental – maison contemporaine
Contexte
Mr et Mme W. sont acquéreurs d’une maison récente située à Villons les Buissons. Ils souhaitent modifier l’aménagement de l’étage afin qu’il corresponde davantage à leur mode de vie.
Demande
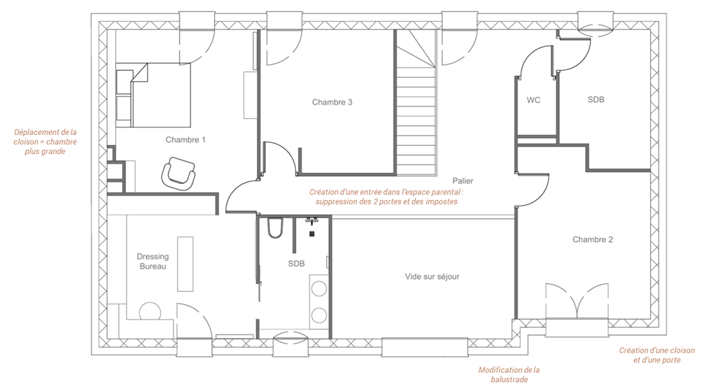
Cloisonner une chambre actuellement sur la mezzanine pour y accueillir leur fille ; Créer un véritable espace parental, avec une chambre confortable, un bureau et un dressing pouvant être à nouveau séparé dans le futur ; Modifier l’aménagement de la salle de bains pour y placer une double vasque et du rangement.
Etapes réalisées
Etude d’aménagement
Une proposition d’aménagement a été faite aux clients, à partir des plans de l’existant. Une version finale a ensuite été réalisée après discussion sur les diverses possibilités.
Le plan final leur a été remis et a servi de base à la rédaction du cahier des charges.
Suivi de réalisation
Une fois le cahier des charges rédigé, les entreprises ont été consultées pour élaborer le budget et le planning : plaquiste, électricien, peintre et agenceur ont été mobilisés.
Archi Rhapsodie a ensuite suivi le chantier jusqu’à la réception.
Le défi dans cette mission a été les délais imposés : 2 mois seulement sont écoulés entre le premier contact avec les clients et leur emménagement dans la maison, une fois les travaux terminés. Un vrai challenge, réussi grâce à la cohésion dans l’équipe des artisans et le suivi de chantier permanent.
Résultat
Une question ? Un projet ?


